發布時間:2019-06-24 瀏覽量:2202

給料機的原理比較簡單,只要掌握其工作和結構原理,在結合實際維護經驗就能做好電磁振動給料機的維護和調試。
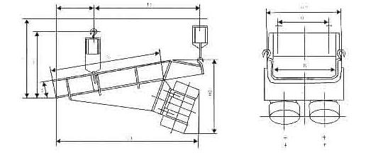
電磁振動給料機擁有較為完整的雙質點定向強迫振動的彈性系統,整個系統工作在低臨界共振狀態。它結構簡單、工作穩定、功率損耗小,在水泥行業得到廣泛應用。一些單位較為普遍的有維護不當、工作狀態不穩定、使用一個時期后物料的輸送能力明顯下降等問題。再加上維護后不做正確的調試,造成設備的工作穩定性較差,嚴重地影響正常的生產。電磁振動給料機的調整、調試主要是電磁鐵鐵芯間隙的調整,雙質點連接彈簧板組的調整、調試。
1、電磁鐵鐵芯與銜鐵間氣隙的整定電磁振動給料機中鐵芯與銜鐵間氣隙的大小直接影響給料機的正常運行,如調整不當,輕者使電流加大、振幅減小和不能正常運轉,嚴重者將產生鐵芯碰撞而導致鐵芯和線圈的損壞。經常性的對氣隙進行檢查和調整是保證運轉的重要條件。
2、雙質點連接彈簧板組的調整料槽的振幅大小有兩大因素:一是給料機電磁激振力的大小、頻率,二是給料機自身的自振頻率。
雙質點彈簧板組的調整方法:在整機調整工作到氣隙調整結束后,就可開始彈簧板組剛度的調整。松開檢修螺桿,接通控制電源,在逐步增加工作電流的同時,觀察設在電磁振動給料機上的振幅指示牌的指示值。當電流達到數值,而振幅達不到數值時,可把彈簧板組的頂緊螺絲稍做松動,這時如振幅增大、工作電流下降,則說明彈簧剛度偏大,應減少簧片的塊數以減少剛度。相反就應增加板簧數以加強整體剛度。
新鄉市宏達振動設備有限責任公司是一家**從事振動電機、振動平臺、倉壁振動器、振動給料機生產、開發的優秀企業。公司承諾:生產的振動電機100%純銅線,真空浸漆,B/F級絕緣樹脂!
咨詢電話:0373-2632812 13598605042 13462312413